MITTELSCHULE MIT
MEHRZWECKHALLE
ARGE Plasser / Landauer
- Standort:
- Jahr:
- Auftraggeber:
- Bauvolumen:
- Statik:
- Bauphysik:
- Hochburg-Ach, Österreich
- Baubeginn 2024
- Öffentlich
- ca. 9 Mio
- Födermayr-Luftensteiner ZT GmbH
- Ing. Wolfgang Kögelberger
Standort: Hochburg-Ach, Österreich
Jahr: Baubeginn 2024
Auftraggeber: Öffentlich
Bauvolumen: 2.9 Mio
Statik: Födermayr-Luftensteiner ZT GmbH
Bauphysik: Ing. Wolfgang Kögelberger
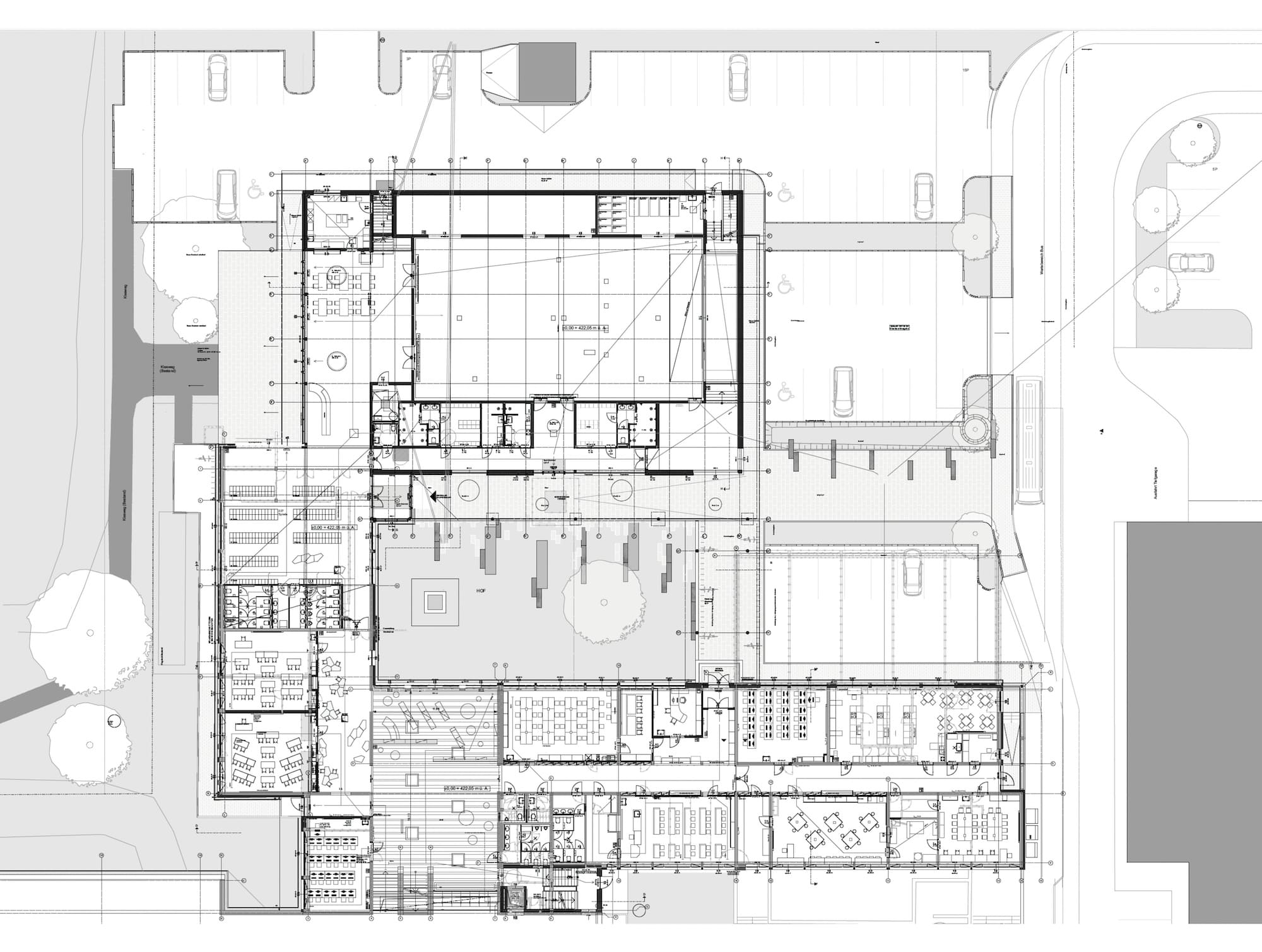
AUFGABE
Am bestehenden Standort in Hochburg-Ach soll die bestehende Mittelschule saniert und erweitert werden. Zudem soll die neue Mehrzweckhalle den Anforderungen einer zeitgemäßen Sportstätte für Vereine und als Veranstaltungsräumlichkeit mit Catering gerecht werden.
1. Preis Jurysitzung 26.11.2020